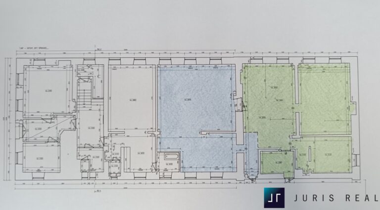
Nabízíme k pronájmu nebytový prostor o výměře 102 m² (v plánku zelená barva). Výhodou je možnost vlastních úprav. K dispozici je také vedlejší prostor s výměrou 88 m² (v plánku modrá barva), se kterým lze propojit a pronajmout si celých 200 m². Vhodné jako obchod, vzorkovna, kanceláře se skladem či k bydlení. Vstupní dveře s výlohou mohou být do ulice Karlova. Je zde vlastní měření spotřebované elektřiny. V případě potřeby jakýchkoli stavebních úprav pro specifické potřeby nájemce je možné se dohodnout a cena pronájmu se bude odvíjet od těchto úprav. Přímo v areálu jsou komerční prostory k podnikání (dílny, sklady), ale i byty. Parkování v areálu.
Tyto webové stránky používají soubory cookies, abychom vám mohli poskytnout co nejlepší uživatelský zážitek. Informace o souborech cookie se ukládají ve vašem prohlížeči a plní funkce, jako je rozpoznání, když se na naše webové stránky vrátíte, a pomáhají našemu týmu pochopit, které části webových stránek považujete za nejzajímavější a nejužitečnější.




