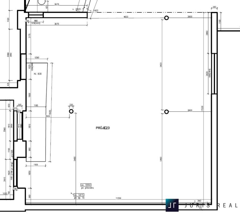
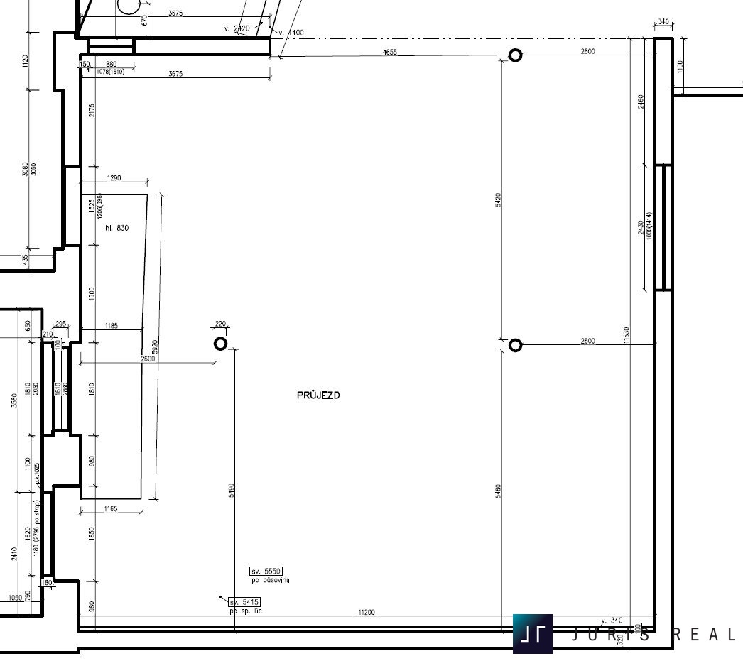
Nabízíme k dlouhodobému pronájmu kryté parkovací stání v ulici Karlova, Varnsdorf. Pod přístřešek se vejde až 6 aut. Zdi jsou cihlové, střecha plechová. Přesné rozměry a umístění sloupků viz. přiložený plánek s výměrou, výška cca 5 metrů. Parkovací stání je umístěno v oploceném areálu, kde se nacházejí výrobní a skladovací prostory.
Tyto webové stránky používají soubory cookies, abychom vám mohli poskytnout co nejlepší uživatelský zážitek. Informace o souborech cookie se ukládají ve vašem prohlížeči a plní funkce, jako je rozpoznání, když se na naše webové stránky vrátíte, a pomáhají našemu týmu pochopit, které části webových stránek považujete za nejzajímavější a nejužitečnější.


