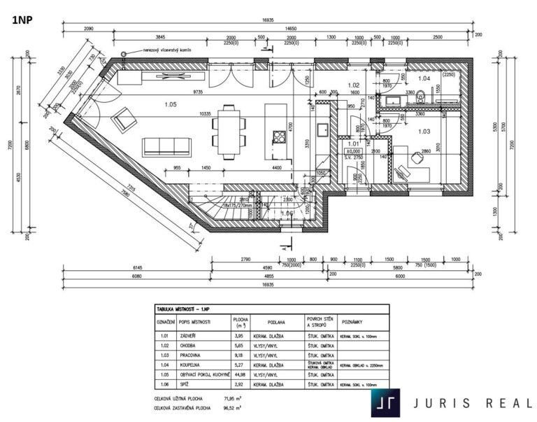
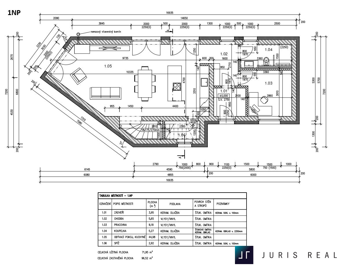
Nabízíme k prodeji nízkoenergetický rodinný dům 5+kk o užitné ploše 137m², umístěném na parcele 900m². Dům bude kompletně dokončen v říjnu 2026 a předán ve stavu k nastěhování (koupelny včetně sanity, kuchyně, obklady, podlahy s podlahovým vytápěním). Pozemek bude oplocen a předán včetně zpevněných ploch k parkování. Dům bude vytápěn tepelným čerpadlem s elektrokotlem. První nadzemní podlaží tvoří prostorný obývací pokoj s kuchyní, pracovna a koupelna s toaletou. Druhé nadzemní podlaží se skládá ze tří ložnic, koupelny s toaletou a technické místnosti. Dům bude napojen do vodovodu a kanalizace. V rámci Žernovky jde o úplně novou lokalitu situovanou u lesa a zatopeného lomu. V případě dalších dotazů volejte kdykoliv. Je možná i výměna za Vaši nemovitost.
Tyto webové stránky používají soubory cookies, abychom vám mohli poskytnout co nejlepší uživatelský zážitek. Informace o souborech cookie se ukládají ve vašem prohlížeči a plní funkce, jako je rozpoznání, když se na naše webové stránky vrátíte, a pomáhají našemu týmu pochopit, které části webových stránek považujete za nejzajímavější a nejužitečnější.








