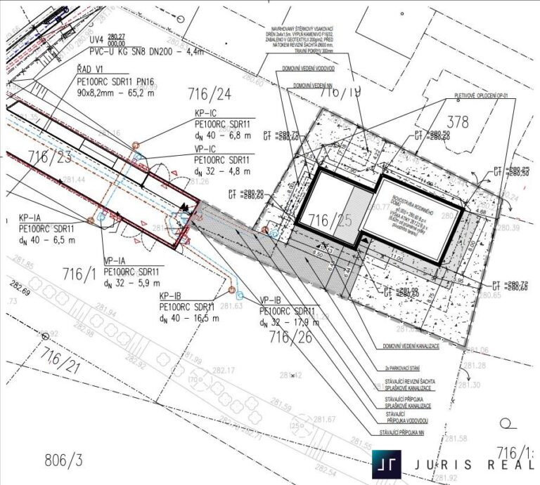
Nabízíme slunný pozemek (parcelní číslo 716/25) v obci Vrátkov nedaleko Prahy (25 minut autem). Parcela má výměru 857m². Lze zde postavit dvoupodlažní rodinný dům s maximální zastavěnou plochou 257m². Je vydané stavební povolení k připojení na inženýrské sítě a je i zpracovaný projekt na rodinný dům. V blízkosti pozemku se nachází dětské hřiště, tenisový kurt s basketbalovým košem a travnatá plocha pro malou kopanou. Pro více informací volejte kdykoliv. Je možná i výměna za jinou nemovitost.
Tyto webové stránky používají soubory cookies, abychom vám mohli poskytnout co nejlepší uživatelský zážitek. Informace o souborech cookie se ukládají ve vašem prohlížeči a plní funkce, jako je rozpoznání, když se na naše webové stránky vrátíte, a pomáhají našemu týmu pochopit, které části webových stránek považujete za nejzajímavější a nejužitečnější.








