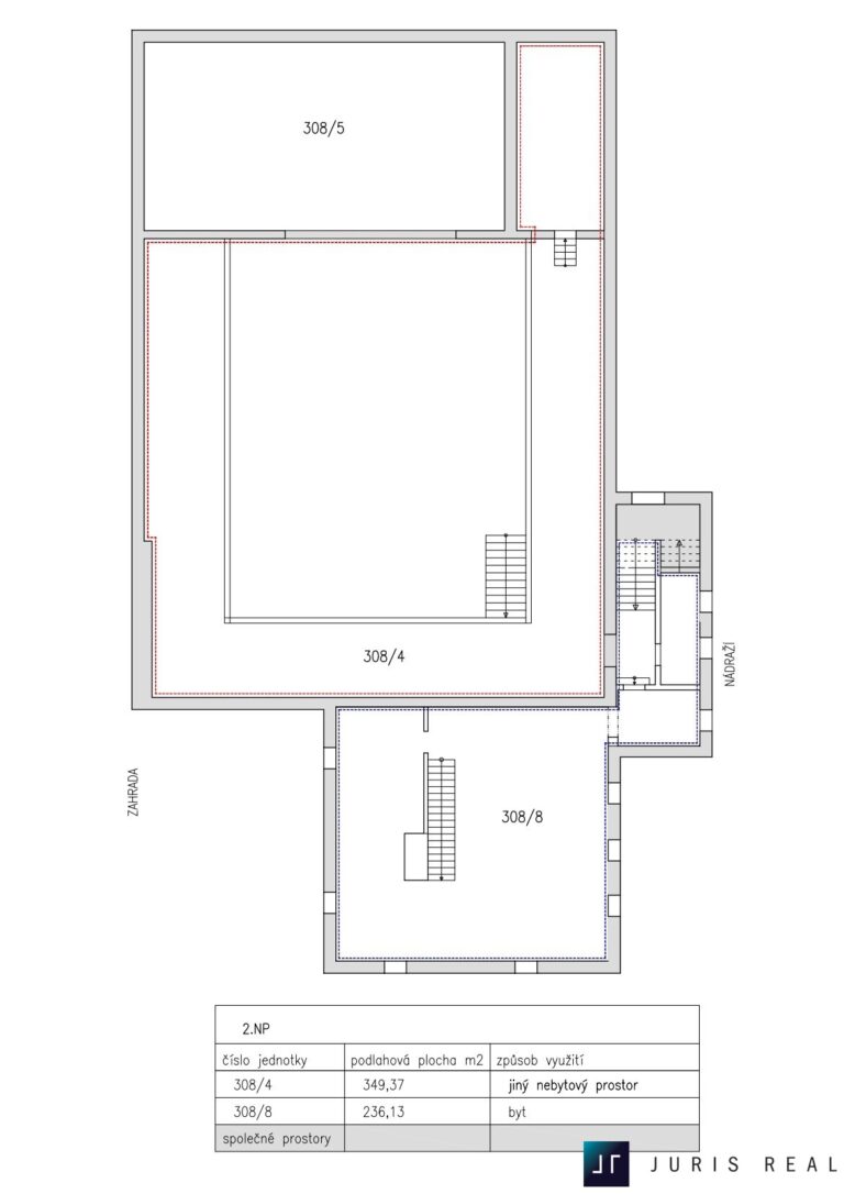
Nabízíme k prodeji atypickou jednotku o výměře 246 m². Jednotka se nachází v několika podlažích a je vhodná pro vestavbu několika bytových jednotek(3-5 bytů). Jde vyloženě o hrubou stavbu, vše je potřeba vybudovat. Objekt je napojen na vodovod a kanalizaci, v ulici se nachází i přípojka plynu. V areálu je možné přikoupit skladovací prostory, restauraci, kanceláře, sklep nebo garáž. Zajistíme financování, nákup možný i na splátky. Cena k jednání. Je možná také výměna za jinou nemovitost.
Tyto webové stránky používají soubory cookies, abychom vám mohli poskytnout co nejlepší uživatelský zážitek. Informace o souborech cookie se ukládají ve vašem prohlížeči a plní funkce, jako je rozpoznání, když se na naše webové stránky vrátíte, a pomáhají našemu týmu pochopit, které části webových stránek považujete za nejzajímavější a nejužitečnější.






